白山市森島町う売工場

【外観】の画像

【外観】 -

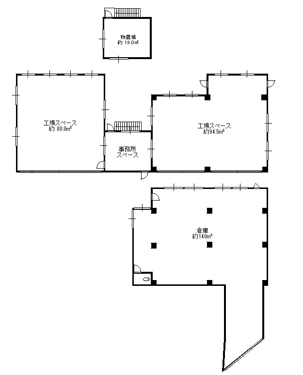
【間取り】の画像

【間取り】 -

【外観】の画像

【外観】 -

【外観】の画像

【外観】 -

【外観】の画像

【外観】 -

【内装】の画像

【内装】 -

【内装】の画像

【内装】 -

【内装】の画像

【内装】 -

【周辺】の画像

【周辺】 JAはくさんよらんねぇ広場

【外観】の画像 外観
【間取り】の画像 間取り
【外観】の画像 外観
【外観】の画像 外観
【外観】の画像 外観
【内装】の画像 内装
【内装】の画像 内装
【内装】の画像 内装
【周辺】の画像 周辺

店舗

価格
2,980万円 支払いシミュレーション
所在地
石川県白山市森島町う132番1、132番4 MAP
交通
北陸鉄道石川線「小柳」駅徒歩25分
坪単価
28.15万円
建物面積(坪数)
350.00㎡ (105.87坪)
間取り
-
築年月(築年数)
1977年 11月 (築48年)
階建て / 所在階
2階建て

まずはご相談ください!

076-247-6364

営業時間
9:00~18:00
定休日
夏季休暇・年末年始

担当者スタッフより

橋本京介

おすすめポイント

森島工業団地地区内の工場です。前面道路は12m以上と広く、国道157号線へのアクセスも良好な場所です。

橋本京介 (資格:宅地建物取引士)

森島工業団地地区内の工場です。前面道路は12m以上と広く、国道157号線へのアクセスも良好な場所です。

まずはご相談ください!

営業時間
9:00~18:00
定休日
夏季休暇・年末年始

物件概要

物件番号:70540400 /  情報更新日:2026年04月13日 /  更新予定日:2026年04月27日 /  取引条件の有効期限:2026年04月27日 情報の見方
価格 2,980万円 支払いシミュレーション 坪単価 28.15万円
管理費 - 修繕積立金 -
所在地 石川県白山市森島町う132番1、132番4 MAP 交通
    北陸鉄道石川線「小柳」駅徒歩25分
建物面積(坪数) 350.00㎡(105.87坪) 間取り -
築年月(築年数) 1977年 11月 (築48年) 所在階 / 階建て - / 2階建て
向き - バルコニー面積 -
現況 / 引渡時期 居住中 / 相談 駐車場 / 月額料金 有 / -
建物構造 鉄筋コンクリート 販売戸数 / 棟総戸数 - / -
管理組合有無 - 管理形態 -
管理方式 - 管理会社 -
土地権利 所有権 土地面積 公簿 : 596.31㎡
地目 / 地勢 宅地 / 平坦 用途地域 工業
国土法届出要否 不要 取引態様 一般媒介
設備条件
  • プロパンガス
  • 公営水道
  • 浄化槽排水
  • 電気有
備考 ◆建物未登記物件
◆汚水桝あり。未接続
◆第二種特別工業地区(森島工業団地地区)

地図

※地図上に表示される物件の位置は付近住所に所在することを表すものであり、実際の物件所在地とは異なる場合がございます。

まずはご相談ください!

営業時間
9:00~18:00
定休日
夏季休暇・年末年始

取り扱い店舗(富商不動産株式会社)

富商不動産株式会社の画像

所在地
石川県金沢市増泉1丁目19-5-3 
電話番号
076-247-6364
営業時間
9:00~18:00
定休日
夏季休暇・年末年始

支払いシミュレーションこの物件を購入した場合の、月々の支払い価格の一例です。借り入れを保証するものではございません。

返済期間
金利
ボーナス時の増額(1回分)
借入金額
頭金

※元利均等方式金利5.00%まで※返済年数5~50年まで入力できます

※ボーナスは年2回で計算しています。1000万円まで入力できます

毎月の返済額

まずはご相談ください!

営業時間
9:00~18:00
定休日
夏季休暇・年末年始

売却査定

お問い合わせ